Et effektivt legekontor

    ()

    sporsmal_grey_rgb
    Artikkel

    De fleste av oss har vel opplevd at en tur til legekontoret kan føre med seg forsinkelser og unødvendig tidsbruk for både legen og pasienten. I Tidsskriftet nr. 5/1953 dukket det opp et forslag til hvordan hele prosessen kunne rasjonaliseres gjennom effektiv arkitektur (Tidsskr Nor Lægeforen 1953; 73: 201–2).

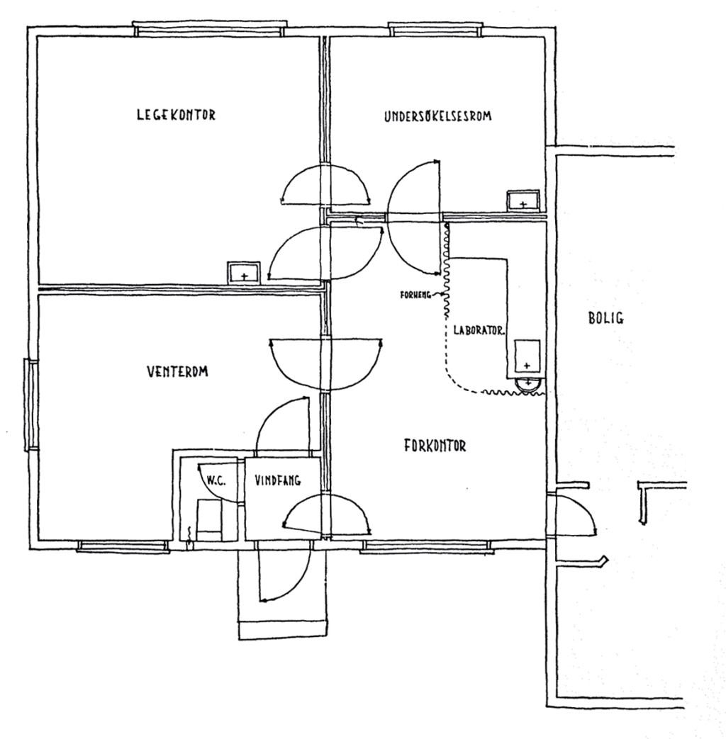
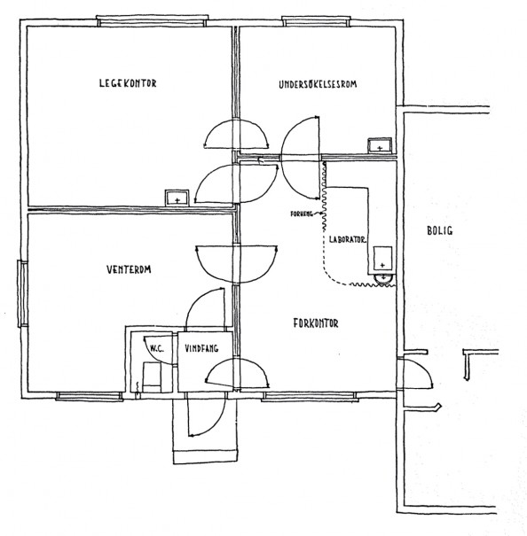
    Innredning av lægekontor.

    Innredning av lægekontor.

    Fra arkitekt A r n e  F o s s har Lægeforeningen fått oversendt nedenstående artikkel samt tegning av et lægekontor under oppførelse for dr. G r å b ø på Grefsen. I sitt oversendelsesskriv sier arkitekten at det prinsipp som ligger til grunn for den viste planløsning er at så vel lægens som pasientens tid kan utnyttes mest mulig effektivt. Idéen er dr. G r å b ø s. Arkitekten synes den er så god at den fortjener å bli kjent i videre kretser. De nærmere detaljer fremgår av artikkelen.

    Rasjonalisering av lægearbeidet.

    Rasjonalisering av lægearbeidet.

    Så vel læger som pasienter vil ha lagt merke til at en ikke ubetydelig del av en vanlig konsultasjon består i den tid som går med til av- og påkledning. Lægen må vente til pasienten er ferdig påkledd før nestemann kan slippes inn, og dette medfører økt ventetid for de andre pasientene.

    Hvis lægen derimot har to konsultasjonsrom, kan tiden utnyttes langt mer effektivt. Så snart lægen er ferdig med en pasient, går han inn på konsultasjonsrom nr. 2, hvor kontorsøster har sørget for at en ny pasient står klar. Mens konsultasjonen i rom nr. 2 pågår, kler den første pasient på seg og går ut på forkontoret, hvoretter søster sender pasient nr. 3 inn på rom nr. 1. Altså: mens lægen arbeider i det ene rom, kler pasientene av og på seg i det annet rom.

    Nedenfor er vist hvordan dette prinsipp er tillempet i praksis i et kontor som nylig er oppført for læge A r n e  G r å b ø, Grefsen. Det er utført som et 1-etasjes tilbygg til et eksisterende våningshus. Bebygd flate er 68 m2, hvilket imidlertid er i minste laget. Forskjellige byggerestriksjoner medførte dog at tilbygget måtte lages så lite som mulig.

    Som det vil sees av plantegningen kommer man gjennom et vindfang inn i venterommet. Derfra kommer pasientene inn til kontorsøster på et forkontor, hvor alle trygdekasseformalia m. v. ordnes. Fra forkontoret er det inngang til lægens kontor og til et undersøkelsesrom. Pasientene vil i alminnelighet først bli sendt inn på lægens kontor, og deretter inn til undersøkelsesrommet. Etter at undersøkelsen er ferdig, går lægen inn på sitt kontor igjen og tar imot neste pasient, mens den første går ut på forkontoret så snart han har kledd på seg. Søster kan også foreta skifting av bandasjer m. v. på undersøkelsesrommet mens lægen har en annen pasient på sitt kontor.

    Fra forkontoret er det inngang til privatleiligheten i det gamle hus. Videre er det dør fra forkontoret til vindfanget, slik at søster kan komme til toalettet eller ut og inn av huset uten å passere venterommet.

    Alle skillevegger og dører er utført dobbelte for å sikre den nødvendige lydisolasjon.

    Oppvarmingen skjer ved tilknytning til den gamle bygnings sentralfyringsanlegg. Elektrisk oppvarmning ble ikke innvilget.

    I kjelleren er det innredet garasje for 2 biler, samt et lite redskapsrom.

    De samlede byggeomkostninger beløper seg til ca. kr. 45 000. Arkitekt har vært A r n e  F o s s, MNAL, og hovedentreprenør tømmermester R o l f  H o l m, Oslo.

    Kommentarer  ( 1 )
    PDF
    Skriv ut

    Anbefalte artikler